Industrial Park St, Thompsonville village, Michigan

$175,000

Previous Next

5.00

Acres

About Industrial Park St

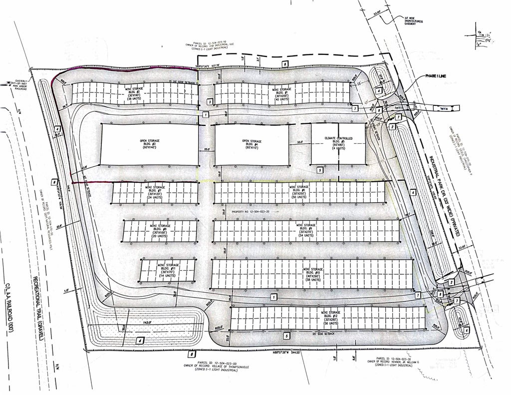
Prime opportunity for investors and developers: this industrial zoned, 5-acre parcel is a fully approved, shovel-ready self-storage development site. All engineered plans, schematics, and municipal approvals convey, with entitlements in place for 358 storage units plus designated open storage. Much of the legwork has been completed, offering significant time and cost savings for a buyer ready to build. The property itself is level and well-suited for construction, ensuring an efficient start to development. A 30 x 48 pole building with fenced area is included and currently leased, providing immediate cash flow during the construction stageâ€"or it can continue as a long-term supplemental income stream. With rising demand for storage facilities, this property combines location, zoning, approvals, and income to present a rare investment opportunity. Whether you proceed with the approved project or adapt it to other light industrial uses, this parcel offers a streamlined path from acquisition to operation.

Features of Industrial Park St

MLS® # 78080062346
Price $175,000
Bathrooms 0.00
Acres 5.00
Year Built 2026
Type Commercial
Status Active

Community Information

Address Industrial Park St
Area 93112 - Thompsonville Vlg
Subdivision N/A
City Thompsonville village
County Benzie
State Michigan
Zip Code 49683

Amenities

Is Waterfront No
Has Pool No

Interior

Heating None
Cooling None
Fireplace No

School Information

District Benzie County Central

Additional Information

Foreclosure No
Short Sale No
RE / Bank Owned No

Listing Details

OfficeREO-TCBeulah-Frankfort-233027
Contact Infokathy@kathyneveu.com

Listing Map

Request a Showing

Provide a valid email address.
When would you like to view this property?

Community Listings for Thompsonville village