22530 Bohn Rd, Sumpter township, Michigan

$45,000

Previous Next

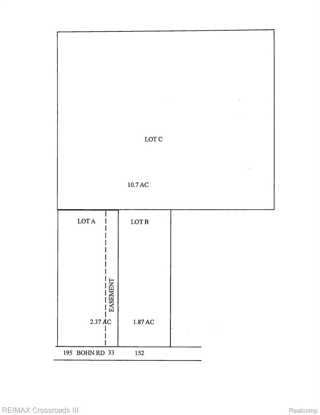
1.87

Acres

About 22530 Bohn Rd

Live in the Country just minutes from Downtown Belleville. Great Area with City water at the street and more. Build your dream and two other parcels available.

Features of 22530 Bohn Rd

MLS® # 20250036484
Price $45,000
Bathrooms 0.00
Acres 1.87
Type Vacant Land
Status Active

Community Information

Address 22530 Bohn Rd
Area 05151 - Sumpter Twp
City Sumpter township
County Wayne
State Michigan
Zip Code 48111

Amenities

Is Waterfront No
Has Pool No

Interior

Fireplace No

School Information

District Van Buren

Additional Information

Foreclosure No
Short Sale No
RE / Bank Owned No

Listing Details

OfficeRE/MAX Crossroads III
Contact Infoclosings@mrsold.com

Listing Map

Request a Showing

Provide a valid email address.
When would you like to view this property?